محصولات
صفحه اصلی > محصولات
کلید 35 کیلو ولت حلقه محصور ثابت برای توزیع
  • کلید 35 کیلو ولت حلقه محصور ثابت برای توزیعکلید 35 کیلو ولت حلقه محصور ثابت برای توزیع

کلید 35 کیلو ولت حلقه محصور ثابت برای توزیع

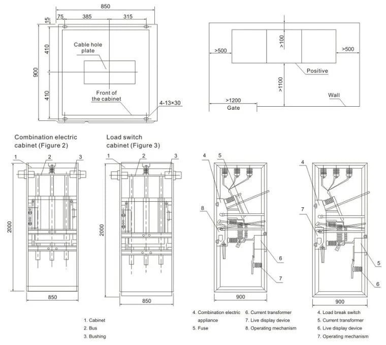
Comewill یک تولید کننده حرفه ای در چین است. تابلو برق حلقه بسته 35 کیلوولتی ما برای توزیع (که از این پس "واحد اصلی حلقه" نامیده می شود) برای توزیع برق. این یک تابلو برق فشار قوی است که به طور خاص برای سیستم های توزیع برق طراحی شده است، مناسب برای تامین و نیازهای انتخاب پروژه های زیرساخت برق است و یک انتخاب ایده آل برای تصمیم گیری های تدارکاتی است.

به عنوان تجهیزات اصلی برای کنترل و حفاظت شبکه توزیع، تابلوی حلقه ثابت 35 کیلو ولت Comewill برای توزیع ساخت چین می تواند به طور پایدار توان قابل اعتمادی را در سناریوهای کاربردی مختلف، مانند پروژه های ساخت و ساز و نوسازی شبکه برق شهری، شرکت های صنعتی و معدنی، ساختمان های بلندمرتبه و امکانات عمومی به طور کامل برآورده کند که نیازهای اصلی خریداران برای عملکرد تجهیزات را برآورده کند.

این واحد اصلی حلقه با طراحی ثابت به محصول مطلوب برای تهیه سیستم توزیع برق مدرن تبدیل شده است و یک پیکربندی زیرساخت برق مقرون به صرفه را به شما ارائه می دهد.

داده های فنی

شماره سریال مورد واحد داده ها
1 ولتاژ نامی کیلوولت 12 40.5
2 فرکانس نامی هرتز 50/60
3 جریان نامی A 630 630/1250
4 فرکانس توان نامی در برابر ولتاژ مقاومت (1 دقیقه) فازها و به زمین kv 42 95
جداسازی فاصله ها 48 118
رعد و برق نامی در مقابل ولتاژ مقاومت فازها و به زمین 75 185
جداسازی فاصله ها 85 215
ولتاژ مقاومت فرکانس برق (کنترل و مدار کمکی) 2
5 دارای جریان مقاومت کوتاه مدت kA 20/25 31.5
6 حداکثر جریان مقاومتی نامی kA 50/63 80
7 مدت زمان نامی جریان اتصال کوتاه s 4 4
8 جریان قطع نامی اتصال کوتاه kA 20/25 31.5
9 جریان تولید اتصال کوتاه نامی kA 50/63 80
10 مدت زمان قوس s 1 1
11 توالی عملیاتی دارای رتبه
0-0.3s-CO-3min-CO
12 گاز عایق
SF6
13 میزان نشت سالانه % ≤ 0.01
14 درجه حفاظت استاندارد جعبه گاز مهر و موم شده
IP67
محفظه کلید IP4X
15 فشار تورم نامی MPa 0.03
حداقل فشار سطح عملکردی 0.01
16 ولتاژ نامی منبع تغذیه مدار کمکی V DC 24, 48, 110, 220, AC220
17 عمر مکانیکی مدار شکن عملیات 10000 11000
سوئیچ جداسازی 5000 3000
کلید ارتینگ 5000 3000
18 استقامت الکتریکی مدار شکن عملیات 30 (E2)
19 از دست دادن تداوم خدمات
LSC2

پارامترهای محیط عملیاتی فنی

· دمای محیط: -10°C ~ +40°C
·ارتفاع: ولتاژ بالا ≤1000m. ولتاژ پایین ≤2500 متر (طراحی سفارشی موجود برای خرید بیش از حد)
·رطوبت نسبی: ≤85%
·شدت لرزه ای: ≤ قدر 8
· پیش نیازهای زیست محیطی: بدون خطرات آتش سوزی/انفجار، بدون آلودگی شدید، بدون خوردگی شیمیایی، بدون لرزش شدید (سایت تهیه باید این موارد را رعایت کند)

از طریق تلاش های خستگی ناپذیر همه کارمندان، ما به طور مداوم مدیریت کیفیت خود را بهبود می بخشیم تا اطمینان حاصل کنیم که تابلو برق حلقه ثابت 35 کیلوولت ما برای توزیع منبع اعتماد مشتریان ما باقی می ماند. هدف ما ارائه جامع‌ترین سیستم تست و مناسب‌ترین راه‌حل‌ها و به حداکثر رساندن رضایت مشتری است. ما ابتدا به اصول مشتری مداری، بازارگرایی و کارایی پایبند هستیم و استعداد خود را به طور مستمر پرورش می دهیم.

Hot Tags: واحد اصلی حلقه محصور فلزی، چین، سازندگان، کارخانه، قیمت، کلید قطع کننده بار هوا 630A، LBS گاز 24 کیلو ولت داخلی، کلید قطع کننده SF6، مدارشکن خلاء روکش چینی در فضای باز، ولتاژ تک فاز ولتاژ VacuumA20 کلید مدار شکن

تگ های داغ: کلید 35 کیلو ولت حلقه محصور ثابت برای توزیع، چین، تولید کننده، تامین کننده، کارخانه، عمده فروشی، سفارشی، در انبار، ساخت چین، قیمت پایین، کیفیت
ارسال استعلام
اطلاعات تماس
  • نشانی

    No.777 جاده Wanweng، منطقه فرعی Wengyang، شهر Yueqing، شهر Wenzhou، استان ژجیانگ، چین

  • پست الکترونیک

    hannah@comewill.com

برای تابلو برق، قطع کننده مدار خلاء، ترانسفورماتور جریان به Comewill درخواست دهید. قیمت های سفارشی، قیمت های پایین یا پشتیبانی متخصص را از تیم کارخانه چین ما دریافت کنید.
X
ما از کوکی ها استفاده می کنیم تا تجربه مرور بهتری به شما ارائه دهیم، ترافیک سایت را تجزیه و تحلیل کنیم و محتوا را شخصی سازی کنیم. با استفاده از این سایت، شما با استفاده ما از کوکی ها موافقت می کنید. سیاست حفظ حریم خصوصی
رد کردن قبول کنید