محصولات
صفحه اصلی > محصولات
کلید KYN28-24KV
  • کلید KYN28-24KVکلید KYN28-24KV
  • کلید KYN28-24KVکلید KYN28-24KV
  • کلید KYN28-24KVکلید KYN28-24KV

کلید KYN28-24KV

Comewill به عنوان یک تولید کننده قابل اعتماد در چین، کلید KYN28-24KV را ارائه می دهد که برای نیروگاه ها، تاسیسات صنعتی، عملیات معدن و پست های فرعی طراحی شده است. این دستگاه که مطابق با استانداردهای IEC298، GB3906 و DL/T404 ساخته شده است، ایمنی الکتریکی استثنایی، انعطاف پذیری عملیاتی و پایداری سیستم را ارائه می دهد.

تابلو برق KYN28-24KV با کیفیت بالا توسط سازنده چینی Comewill ارائه می شود. دارای طراحی قطع کننده مدار قابل برداشت، حفاظت قفل مکانیکی پیشرفته "Anti-5" و سازگاری با قطع کننده های مدار خلاء پیشرو مانند VS1-24 و معادل های جهانی است. با نصب انعطاف پذیر، حفاظت قوس قوی و پشتیبانی از سیستم های نظارت شبکه هوشمند، به طور گسترده در پست ها، نیروگاه های صنعتی و زیرساخت های انرژی استفاده می شود.

این واحد توزیع یکپارچه، کارهای سنگین را در کاربردهای کلیدی انجام می دهد: نیروگاه ها (انتقال آب از ژنراتورهای کوچک/متوسط)، سایت های صنعتی/معدنی (توزیع برق در محل)، و پست های فرعی صنعت برق (کنترل، حفاظت و نظارت بر شبکه). و به گونه‌ای ساخته شده است که تمام جعبه‌های انطباق را علامت بزند—با استانداردهای DL/T404، IEC298، GB3906 مطابقت دارد، بنابراین شما با دنده‌های غیرمجاز گیر ندهید.

برد واقعی اینجاست؟ سیستم قفل سنگ جامد آن که خطرات ایمنی را از بین می برد. شما را از بیرون کشیدن واگن برقی در حین بارگیری باز می دارد، از روشن/خاموش تصادفی کلید شکن جلوگیری می کند، در صورت روشن بودن کلید ارت، بسته شدن قطع کننده را مسدود می کند، شما را به اشتباه از محفظه های برق خارج می کند، و مانع از خاموش شدن تصادفی کلید ارت می شود. بدون میانبر در مورد ایمنی - برای هر سایتی حیاتی است.

چه در حال خرید برای نیروگاه، سایت صنعتی یا پست پست هستید، تابلو برق KYN28-24KV شرکت Welcome (Wenzhou) برای خرید عمده آماده است. ما می‌توانیم آن را به گونه‌ای تنظیم کنیم که با تنظیمات دقیق شما مطابقت داشته باشد، بنابراین شما یک راه‌حل یک‌اندازه برای همه را مجبور نکنید.

معنی مدل


کلید KYN28-24KV: از شرایط و ویژگی ها استفاده کنید
بیایید آن را ساده نگه داریم - در اینجا چیزی است که باید در مورد استفاده و انتخاب تابلو برق KYN28-24، مستقیماً برای تماس های تدارکاتی خود بدانید.

شرایط استفاده معمولی
این ابزار برای کنترل حالات واقعی سایت ساخته شده است، بنابراین در اینجا پایین آمدن است:

محدوده دما: از -15 تا +40 درجه سانتیگراد کار می کند - در اکثر نقاط داخلی مشکلی وجود ندارد.
محدودیت های رطوبت: میانگین رطوبت روزانه ≤95% (فشار بخار ≤2.2kPa)؛ میانگین ماهانه ≤90٪ (فشار بخار ≤1.8 کیلو پاسکال) - حتی زمانی که مرطوب است، حفظ می شود.
مقاومت در برابر زلزله: زمین لرزه های ≤8 درجه را می گیرد، با لرزش افقی 0.3 گرم و عمودی 0.15 گرم - در جایی که مهم است پایدار است.
تحمل کثیفی: مناسب مکان‌های کثیف درجه 3 - در برابر گرد و غبار صنعتی یا کثیفی مقاوم است.
جزئیات نصب: فقط در داخل ساختمان، با پیچ های لنگر یا جوش نصب شده است - به راحتی تنظیم می شود.

ویژگی های کلیدی

وقتی منبع این تابلو برق را تهیه می کنید، این بردها مهم هستند:
ضامن مکانیکی "Anti-5": فوق العاده قابل اعتماد - خطرات ایمنی را کاهش می دهد و تعمیر و نگهداری را آسان می کند (بدون تعمیر پیچیده، فقط نگهداری ساده).
دو سبک قابل برداشت: گزینه های نورد وسط و نورد کف - هر نیاز فنی یا عادات کاری سایت شما را پوشش می دهد.
جفت‌سازی انعطاف‌پذیر VCB: با VCB‌های Zn85-40.5/VS1-40.5 خودمان و انتخاب‌های جهانی مانند VD4، VB2، 3AH از مارک‌های دیگر کار می‌کند—بدون قفل، از قطعات مورد اعتماد خود استفاده کنید.


چه برای راه‌اندازی‌های صنعتی داخلی یا پست‌های فرعی خریداری کنید، تابلو برق KYN28-24 شرکت Welcome (Wenzhou) دوام، ایمنی و انعطاف‌پذیری را ارائه می‌دهد. ما آن را برای سفارش‌های انبوه آماده کرده‌ایم، و می‌توانیم موارد را مطابق با نیازهای سایت شما تغییر دهیم.

پارامتر فنی

مورد واحد داده ها
ولتاژ نامی KV 13.8، 15، 17.5، 20، 22، 24
سطح عایق رتبه بندی شده 1 دقیقه P.F. مقاومت در برابر ولتاژ (فاز به زمین / شکاف) KV 50/60
مقاومت در برابر ولتاژ صاعقه (فاز به زمین / شکاف) KV 125/145
فرکانس نامی هرتز 50/60
جریان نامی A 630، 1250، 1600، 2000، 2500، 3150
جریان مقاومت کوتاه مدت (4 ثانیه) KA 16، 20، 25، 31.5، 40، 50
حداکثر جریان مقاومتی درجه بندی شده※ KA 40، 50، 63، 80، 100، 125
کلاس حفاظتی
محفظه: lP4X، IP2X (درب VCB باز شده)
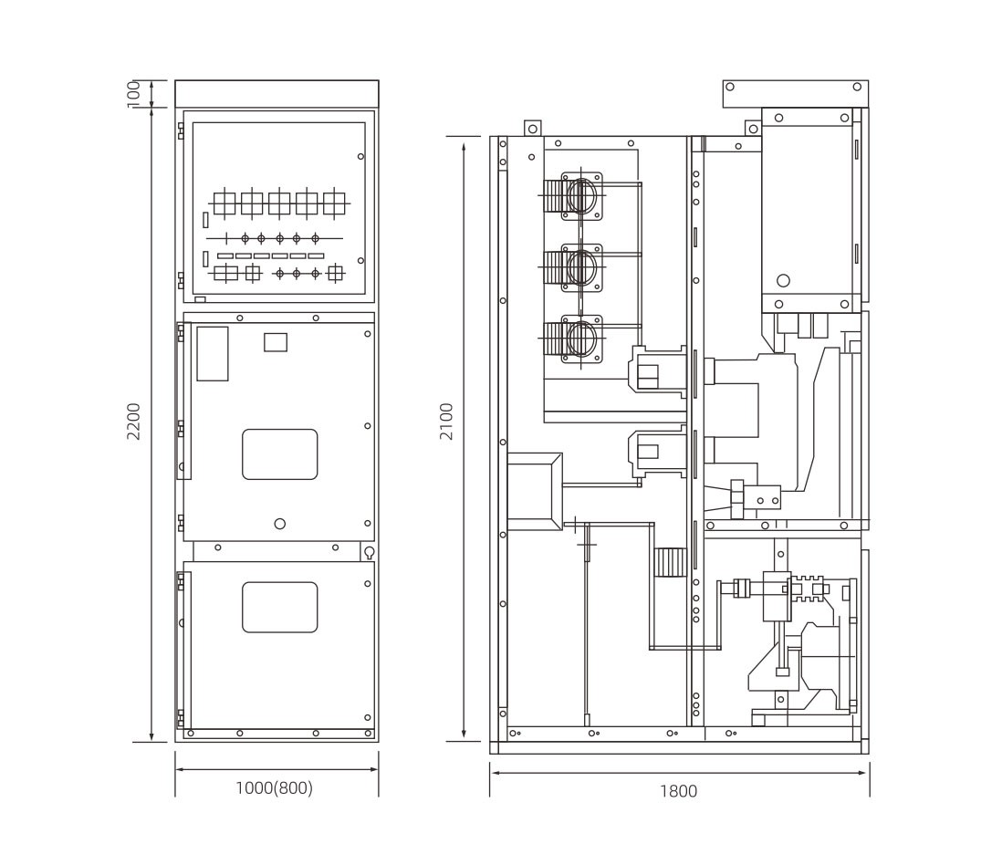
بعد طرح کلی (عرض×عمق×ارتفاع) میلی متر 1000(800)×1800×2400
وزن کیلوگرم 840-1500

اندازه محصول



شرایط عملیاتی

وضعیت مشخصات
دمای محیط +15 درجه سانتی گراد تا +40 درجه سانتی گراد (متوسط ​​≤35 درجه سانتی گراد در 24 ساعت)
ارتفاع ≤1000 متر
رطوبت نسبی میانگین ماهانه ≤90٪، فشار بخار ≤1.8kPa
گرد و غبار، دود، گاز بدون آلودگی خورنده، قابل اشتعال یا رسانا
لرزش / حرکت زمین ناچیز
تداخل الکترومغناطیسی ≤1.6kV القا شده در مدارهای ثانویه

مشخصات فنی اولیه

آیتم واحد داده ها
ولتاژ نامی کیلوولت 24
فرکانس رتبه بندی شده هرتز 50/60
ولتاژ مقاومت در برابر ضربه رعد و برق (فاز، زمین) کیلوولت 60
ولتاژ مقاومت در برابر ضربه رعد و برق (ایزولاتور) کیلوولت 79
ولتاژ تحمل فرکانس برق (فاز، زمین) کیلوولت 125
ولتاژ مقاومت فرکانس برق (ایزولاتور) کیلوولت 145
مدار کمکی مقاومت در برابر ولتاژ V 2000
جریان قطع کننده مدار نامی A 630 / 1250 / 1600 / 2000 / 2500 / 3150
جریان قطع اتصال کوتاه kA 20 / 31.5
جریان بسته شدن اتصال کوتاه (اوج) kA 50/80
جریان مقاومت کوتاه مدت kA 20 / 31.5
جریان مقاومت در اوج kA 50/80
ولتاژ مدار کمکی V AC/DC 110/220
مدرک حفاظتی IP4X (IP2X با در باز)
ابعاد (W×D×H) میلی متر 800×1810×2380 / 1000×1810×2380
وزن کیلوگرم 840 تا 1140

مشخصات قطع کننده مدار خلاء VS1-24

آیتم واحد داده ها
ولتاژ نامی کیلوولت 24
مقاومت در برابر ضربه رعد و برق کیلوولت 60
مقاومت فرکانس برق کیلوولت 125
فرکانس رتبه بندی شده هرتز 50/60
جریان رتبه بندی شده A 630–3150
جریان قطع اتصال کوتاه kA 20 / 31.5
جریان بسته شدن (اوج) kA 50/80
جریان مقاومت کوتاه مدت kA 20 / 31.5
جریان مقاومت در اوج kA 50/80
شکستن بانک خازن (تک / پشت به پشت) A 630/400
شکستن زمان عملیات بار 50
زندگی مکانیکی بار 20000
توالی عملیاتی O-0.3s-CO-180s-CO

پارامترهای مکانیزم عملیاتی VS1-24

آیتم واحد داده ها
ولتاژ سیم پیچ (بسته/سفر) V AC220، AC110، DC220، DC110
جریان سیم پیچ A 1.1 آمپر (220 ولت)، 3.1 آمپر (110 ولت)
قدرت موتور ذخیره انرژی W 80/100
زمان ذخیره انرژی s ≤10

کلید KYN28-24KV با روکش فلزی: سوالات متداول

1. چه چیزی Switchgear با روکش فلزی KYN28-24KV را بهتر از تابلوهای سنتی نوع ثابت می کند؟
تابلو برق ثابت سنتی به معنای خاموش کردن کل سیستم فقط برای تعمیر یا تعویض قطعات است - دردسر کامل. KYN28-24KV ما از طراحی گاری دستی قابل برداشت استفاده می کند: می توانید اجزا را جداسازی کنید، تعمیر و نگهداری انجام دهید یا قطعات را بدون خاموش کردن کل تنظیمات تعویض کنید. علاوه بر این، ساختار فلزی محافظ قوس الکتریکی را اضافه می‌کند، اپراتورها را ایمن نگه می‌دارد، و به شما امکان می‌دهد واحدهای داخلی را سریع تعویض کنید - زمان خرابی را به حداقل می‌رساند، که برای هر سایتی که توان پرداخت هزینه‌های قطعی را ندارد، بسیار زیاد است.
2. آیا می توان از این کلید فلزی در پست های هوشمند استفاده کرد؟
کاملا. ما KYN28-24KV را دقیقاً با سازگاری با شبکه هوشمند ساختیم. می‌توانید پایانه‌های کنترل از راه دور، رله‌های دیجیتال و سیستم‌های SCADA را به آن اضافه کنید—بنابراین می‌توانید نظارت بی‌درنگ، محرک‌های حفاظتی فوری، و ارتباط بی‌وقفه با تنظیمات مدیریت شبکه خود داشته باشید. این دقیقاً با ساخت پست‌های هوشمند مدرن سازگار است، بدون سردرد اضافی.
3. کلید KYN28-24 Metal-Clad Switchgear برای چه محیط هایی مناسب است؟
این برای استفاده در داخل ساختمان ساخته شده است و در نقاطی می درخشد که نیاز به توزیع ولتاژ بالا قابل اعتماد با ایمنی و نظارت بالایی دارند: پست‌های شهری (تغذیه شبکه‌های شهری)، ایستگاه‌های تولید برق (تغذیه برق)، سایت‌های معدن (تجهیزات صنعتی سخت)، و ساختمان‌های تجاری بزرگ (مرکز خرید، بلندمرتبه‌ها). هر جایی که به وسایلی نیاز دارید که سخت، ایمن و آسان باشد - این یکی است.
در Welcome (Wenzhou) Electric Co., Ltd، ما تابلو برق KYN28-24KV را طراحی کرده ایم تا به سوالات واقعی خریداران و اپراتورها پاسخ دهد - بدون کرک، فقط راه حل هایی که برای پروژه های شما کار می کنند.

تگ های داغ: کلید KYN28-24KV، چین، تولید کننده، تامین کننده، کارخانه، عمده فروشی، سفارشی، در انبار، ساخت چین، قیمت پایین، کیفیت
ارسال استعلام
اطلاعات تماس
  • نشانی

    No.777 جاده Wanweng، منطقه فرعی Wengyang، شهر Yueqing، شهر Wenzhou، استان ژجیانگ، چین

  • پست الکترونیک

    hannah@comewill.com

برای تابلو برق، قطع کننده مدار خلاء، ترانسفورماتور جریان به Comewill درخواست دهید. قیمت های سفارشی، قیمت های پایین یا پشتیبانی متخصص را از تیم کارخانه چین ما دریافت کنید.
X
ما از کوکی ها استفاده می کنیم تا تجربه مرور بهتری به شما ارائه دهیم، ترافیک سایت را تجزیه و تحلیل کنیم و محتوا را شخصی سازی کنیم. با استفاده از این سایت، شما با استفاده ما از کوکی ها موافقت می کنید. سیاست حفظ حریم خصوصی
رد کردن قبول کنید